240.000 €
- 2 habs.
- 1 baño
- 70 m²
- 5ª planta
- 3.428 €/m²
Ático en venta en Carrer de Sant Francesc Xavier
La Prosperitat (Distrito Nou Barris. Barcelona Capital)
Más información sobre la zona
La ubicación es aproximada
Ubicación
Accede a la vista 3D, activa el modo satélite y consulta puntos de interés como transporte, salud, educación u otros servicios.
Descripción
Traducciones disponibles:
C/ sant francesc xavier 5º real sin ascensor
Ático exterior con terraza acristalada y vistas despejadas – plaza harry walker
Una vivienda ideal para quien busque luz natural, vistas abiertas y espacio exterior integrado, en una zona consolidada con todos los servicios.
Ático de 61,50 m² útiles (70 m² construidos), muy luminoso y completamente exterior en sus principales estancias, situado en finca de 1966.
La vivienda se distribuye de forma funcional y cómoda:
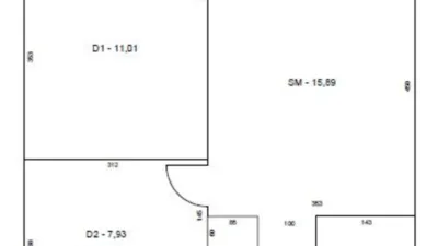
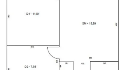
Salón-comedor de 15,89 m², amplio y luminoso, con salida a una agradable terraza.
Terraza de 11,94 m², actualmente cubierta e integrada al salón mediante cerramiento de aluminio de alta calidad y excelente confort térmico, creando una tercera estancia acristalada ideal como zona de despacho, lectura o comedor auxiliar.
2 dormitorios:
Principal de 11,01 m², exterior a la calle.
Individual de 7,93 m².
Cocina independiente de 5,57 m², reformada hace 13 años, muy luminosa y equipada con muebles altos y bajos, horno, encimera, campana extractora y calentador, con acceso a práctico lavadero.
Baño completo de 3,37 m², reformado.
Características destacadas
Orientación sur-este, con bonitas vistas despejadas sobre plaza harry walker, avenida rio de janeiro y colegio santiago rusiñol.
Exterior a calle en salón y dormitorio principal.
Calefacción individual de gas natural.
Aire acondicionado con bomba de calor en el salón.
Suelos de gres.
Puertas barnizadas.
Ventanas de aluminio con doble acristalamiento.
Suministros dados de alta.
Edificio del año 1966 sin ascensor, con terrado comunitario destinado a zona de tender y solárium.
Nota: gastos de impuestos de transmisiones patrimoniales, aranceles, notariales, registrales a cargo de la parte compradora.
Nota importante: fincas san andres, en cumplimiento de lo dispuesto en el artículo 55 de llei 18/2007 del 28 de desembre, del dret a l’habitatge no cobra ningún tipo de honorarios profesionales a la parte compradora en concepto de la presente comercialización.
Calles cercanas: pº valldaura – c/ boada – av. Rio de janeiro – c/ badosa. Metro l4 lluchmajor
Ático exterior con terraza acristalada y vistas despejadas – plaza harry walker
Una vivienda ideal para quien busque luz natural, vistas abiertas y espacio exterior integrado, en una zona consolidada con todos los servicios.
Ático de 61,50 m² útiles (70 m² construidos), muy luminoso y completamente exterior en sus principales estancias, situado en finca de 1966.
La vivienda se distribuye de forma funcional y cómoda:
Salón-comedor de 15,89 m², amplio y luminoso, con salida a una agradable terraza.
Terraza de 11,94 m², actualmente cubierta e integrada al salón mediante cerramiento de aluminio de alta calidad y excelente confort térmico, creando una tercera estancia acristalada ideal como zona de despacho, lectura o comedor auxiliar.
2 dormitorios:
Principal de 11,01 m², exterior a la calle.
Individual de 7,93 m².
Cocina independiente de 5,57 m², reformada hace 13 años, muy luminosa y equipada con muebles altos y bajos, horno, encimera, campana extractora y calentador, con acceso a práctico lavadero.
Baño completo de 3,37 m², reformado.
Características destacadas
Orientación sur-este, con bonitas vistas despejadas sobre plaza harry walker, avenida rio de janeiro y colegio santiago rusiñol.
Exterior a calle en salón y dormitorio principal.
Calefacción individual de gas natural.
Aire acondicionado con bomba de calor en el salón.
Suelos de gres.
Puertas barnizadas.
Ventanas de aluminio con doble acristalamiento.
Suministros dados de alta.
Edificio del año 1966 sin ascensor, con terrado comunitario destinado a zona de tender y solárium.
Nota: gastos de impuestos de transmisiones patrimoniales, aranceles, notariales, registrales a cargo de la parte compradora.
Nota importante: fincas san andres, en cumplimiento de lo dispuesto en el artículo 55 de llei 18/2007 del 28 de desembre, del dret a l’habitatge no cobra ningún tipo de honorarios profesionales a la parte compradora en concepto de la presente comercialización.
Calles cercanas: pº valldaura – c/ boada – av. Rio de janeiro – c/ badosa. Metro l4 lluchmajor
Descripción
Características
Datos básicos
Superficie construida:
70 m²
Superficie útil:
62 m²
Habitaciones:
2
Baños:
1
Planta:
5ª
Exterior
Antigüedad:
Más de 50 años
Conservación:
En buen estado
Referencia:
923V
Muebles y acabados
Armarios empotrados:
Sin especificar
Tipo suelo:
Gres
Vidrios dobles
Carpintería exterior:
Aluminio
Equipamiento e instalaciones
Gas
Aire acondicionado:
Con bomba de calor
Calefacción:
Gas natural
Cocina equipada:
Independiente
Lavadero
Portero automático
Puerta blindada
Exteriores
Orientación:
Este
Soleado
Otros
Se aceptan mascotas
Características
Publicidad
Certificado energético
Clasificación: Disponible
e
Consumo:
175 kWh/m² año
e
Emisiones:
37 Kg CO₂/m² año
Ver detalle
Certificado energético
La certificación energética indica la eficiencia del inmueble en cuanto a consumo de energía, agua, etc.
La categoría A es la más eficiente y la G la menos.
Etiqueta de certificación energética
Todo lo que necesitas para tu nuevo hogar
Tu nuevo hogar, más cerca
25 € de descuento en tu mudanza
Consulta precios
Última actualización
Anuncio actualizado el 14/04/2026
Contacta con el anunciante
Ref.: 923V
Ver inmuebles de FINCAS SAN ANDRESCalcula tu hipoteca
Áticos cerca de La Prosperitat (Distrito Nou Barris. Barcelona Capital)
Luminoso
Comedor
Comedor
Comedor
Comedor
Comedor
Comedor
Comedor
Comedor
Comedor
Terraza
Terraza
Terraza
Almacén
Terraza
Terraza
Terraza
Terraza
Terraza
Vistas
Vistas
Vistas
Vistas
Vistas
Vistas
Vistas
Baño
Baño
Cocina
Cocina
Cocina
Cocina
Cocina
Dormitorio
Dormitorio
Dormitorio
Dormitorio
Plano
Plano
