960.000 €
- 3 habs.
- 1 baño
- 662 m²
- 1.450 €/m²
Casa en venta en Aldaba
Aldaba (Tolosa)
Más información sobre la zona
La ubicación es aproximada
Ubicación
Accede a la vista 3D, activa el modo satélite y consulta puntos de interés como transporte, salud, educación u otros servicios.
Descripción
Traducciones disponibles:
Ofrecemos ésta CASA RURAL con encanto y mucho potencial, en la zona de Aldaba-Tolosa. Incluye un terreno de 31.766 metros cuadrados.
La propiedad, ofrece una EXCELENTE OPORTUNIDAD de INVERSIÓN, ya que dispone de la posibilidad de SEGREGACIÓN para desarrollar DOS O TRES VIVIENDAS e incluso CUATRO, con entradas independientes.
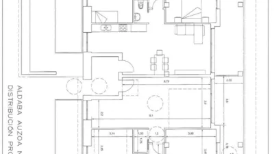
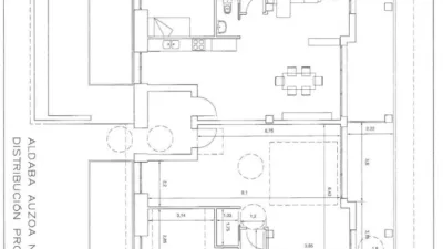
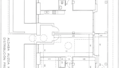
Incluimos en la información del inmueble, PLANOS DISEÑADOS por arquitecto, donde se reflejan distintas opciones de construcción y distribución, como es el caso de la PRIMERA PLANTA, donde se pueden construir 2 viviendas con 3 o 4 dormitorios, con acceso a cota de calle, según las necesidades del comprador o inversor, de cara a un desarrollo familiar o turístico.
Se ha realizado en el mes de Octbure de este año, una consulta urbanística que consiste en: una construcción consolidada y terreno circundante privativo, que se situa en el ámbito natural, definido en el planteamiento municipal como "núcleo rural de Aldaba".
ALDABA, está situada en una ladera y se extiende desde la regata Otzarain hasta Ikaztegieta. Limita al norte y oeste con Albiztur y al sur con Legorreta e Ikaztegieta. Al oeste con Alegia. Y a 10 minutos de la N-1.
El inmueble se distribuye en:
A) PLANTA BAJA-COTA O: Salón comedor con chimenea y barra de bar, 3 dormitorios dobles y amplia cocina equipada completa. Con la denominada "cocina económica" que funciona con leña, se calientan todos los radiadores. Además desde el pasillo, accedemos a un comedor de 120 M2 y garaje (ambos con entrada independiente desde el exterior).
B) PLANTA BAJO CUBIERTA: Es un espacio amplio versátil, luminoso y con solera de hormigón. Incluye un balcón con acceso por 2 lados y unas cristaleras a 2 aguas con doble cristal Climalit. Las vigas han sido tratadas y el tejado actualizado.
C) PLANTA SEMISÓTANO: Consta de 3 zonas independientes para utilizarlas según las necesidades del propietario.
Debemos mencionar, el parking exterior para varios vehículos que facilitan el acceso y comodidad. Así como la terraza de fachada principal con un mirador hacia el monte Txindoki, la presa de Ibiur y todo el macizo de Aralar, que hará las delicias de amigos y familiares. Además de la otra lateral. Es decir, que el caserío cuenta con 2 terrazas.
El bosque que rodea la finca, está formado por nogales, manzanos y avellanos.
A pocos metros se encuentra la ermita de San Miguel, muy conocida y con muchos visitantes. También existe un agroturismo, denominado "Santa Marina" bajo el monte Murumendi. Para los amantes del senderismo, hay varias rutas y el propio Ayuntamiento de Tolosa, es que aconseja los itinerarios.
Próximos, tenemos la SIDRERÍA ISASTEGIETA y el merendero LANGAURRE.
Por lo tanto, una gran oportunidad para ejecutar distintos proyectos...
Si desea más información o realizar una visita, no lo dude y llámenos. Estaremos encantados de atenderle.
*Gastos no incluidos: impuestos, notario, registro de la propiedad, etc. Orientativamente estos gastos serán aproximadamente de 38.400 €
**Este porcentaje puede variar en casos como, vivienda habitual, segunda residencia o por edad del comprador.
***Muebles no incluidos salvo que se especifique lo contrario.
La propiedad, ofrece una EXCELENTE OPORTUNIDAD de INVERSIÓN, ya que dispone de la posibilidad de SEGREGACIÓN para desarrollar DOS O TRES VIVIENDAS e incluso CUATRO, con entradas independientes.
Incluimos en la información del inmueble, PLANOS DISEÑADOS por arquitecto, donde se reflejan distintas opciones de construcción y distribución, como es el caso de la PRIMERA PLANTA, donde se pueden construir 2 viviendas con 3 o 4 dormitorios, con acceso a cota de calle, según las necesidades del comprador o inversor, de cara a un desarrollo familiar o turístico.
Se ha realizado en el mes de Octbure de este año, una consulta urbanística que consiste en: una construcción consolidada y terreno circundante privativo, que se situa en el ámbito natural, definido en el planteamiento municipal como "núcleo rural de Aldaba".
ALDABA, está situada en una ladera y se extiende desde la regata Otzarain hasta Ikaztegieta. Limita al norte y oeste con Albiztur y al sur con Legorreta e Ikaztegieta. Al oeste con Alegia. Y a 10 minutos de la N-1.
El inmueble se distribuye en:
A) PLANTA BAJA-COTA O: Salón comedor con chimenea y barra de bar, 3 dormitorios dobles y amplia cocina equipada completa. Con la denominada "cocina económica" que funciona con leña, se calientan todos los radiadores. Además desde el pasillo, accedemos a un comedor de 120 M2 y garaje (ambos con entrada independiente desde el exterior).
B) PLANTA BAJO CUBIERTA: Es un espacio amplio versátil, luminoso y con solera de hormigón. Incluye un balcón con acceso por 2 lados y unas cristaleras a 2 aguas con doble cristal Climalit. Las vigas han sido tratadas y el tejado actualizado.
C) PLANTA SEMISÓTANO: Consta de 3 zonas independientes para utilizarlas según las necesidades del propietario.
Debemos mencionar, el parking exterior para varios vehículos que facilitan el acceso y comodidad. Así como la terraza de fachada principal con un mirador hacia el monte Txindoki, la presa de Ibiur y todo el macizo de Aralar, que hará las delicias de amigos y familiares. Además de la otra lateral. Es decir, que el caserío cuenta con 2 terrazas.
El bosque que rodea la finca, está formado por nogales, manzanos y avellanos.
A pocos metros se encuentra la ermita de San Miguel, muy conocida y con muchos visitantes. También existe un agroturismo, denominado "Santa Marina" bajo el monte Murumendi. Para los amantes del senderismo, hay varias rutas y el propio Ayuntamiento de Tolosa, es que aconseja los itinerarios.
Próximos, tenemos la SIDRERÍA ISASTEGIETA y el merendero LANGAURRE.
Por lo tanto, una gran oportunidad para ejecutar distintos proyectos...
Si desea más información o realizar una visita, no lo dude y llámenos. Estaremos encantados de atenderle.
*Gastos no incluidos: impuestos, notario, registro de la propiedad, etc. Orientativamente estos gastos serán aproximadamente de 38.400 €
**Este porcentaje puede variar en casos como, vivienda habitual, segunda residencia o por edad del comprador.
***Muebles no incluidos salvo que se especifique lo contrario.
Descripción
Características
Datos básicos
Superficie construida:
662 m²
Superficie útil:
602 m²
Superficie solar:
31.766 m²
Habitaciones:
3
Baños:
1
Antigüedad:
Más de 50 años
Referencia:
3576-00862/8671
Muebles y acabados
Amueblado
Tipo suelo:
Tarima maciza
Equipamiento e instalaciones
Agua
Teléfono
Calefacción
Chimenea
Garaje:
1
Trastero
Sistema de seguridad
Exteriores
Terraza
Orientación:
Este
Características
Publicidad
Certificado energético
Clasificación: Disponible
d
Consumo:
176 kWh/m² año
e
Emisiones:
42 Kg CO₂/m² año
Ver detalle
Certificado energético
La certificación energética indica la eficiencia del inmueble en cuanto a consumo de energía, agua, etc.
La categoría A es la más eficiente y la G la menos.
Etiqueta de certificación energética
Todo lo que necesitas para tu nuevo hogar
Tu nuevo hogar, más cerca
Tu mudanza en 1 minuto
Consulta precios
Alarma por 19,90 al mes
Infórmate gratis
Última actualización
Anuncio actualizado el 14/11/2025
Contacta con el anunciante
Ref.: 3576-00862/8671
Ver inmuebles de Remax BogaCalcula tu hipoteca
Oportunidad
Fachada
Fachada
Cocina
Cocina
Dormitorio
Dormitorio
Dormitorio
Dormitorio
Dormitorio
Dormitorio
Dormitorio
Dormitorio
Pasillo
Pasillo
Pasillo
Baño
Baño
Baño
Garaje/Parking
Fachada
Terraza
Terraza
Terraza
Terraza
Terraza
Vistas
Vistas
Vistas
Fachada
Fachada
Vistas
Vistas
Vistas
Vistas
Vistas
Plano
Plano
Plano
