1.400.000 €
- 27 habs.
- 2 baños
- 1.103 m²
- 1.269 €/m²
Casa en venta en Zestoa
Zestoa
Más información sobre la zona
La ubicación es aproximada
Ubicación
Accede a la vista 3D, activa el modo satélite y consulta puntos de interés como transporte, salud, educación u otros servicios.
Descripción
Traducciones disponibles:
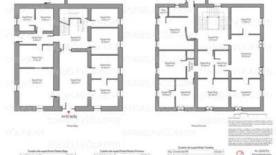
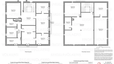
En pleno corazón de Arroa Goikoa se alza el Palacio Balzola, una singular casa torre desmochada del siglo XV que conserva todo el carácter de épocas pasadas. Su robusta estructura de vigas de roble macizo y la imponente fachada de piedra con sillería, lo convierten en un edificio de gran valor arquitectónico y patrimonial. En su interior destacan los suelos de roble antiguo original y de piedra en algunas estancias, que aportan un encanto único.
Con un total de 859 m² útiles distribuidos en cuatro plantas, esta propiedad se presenta como una oportunidad excepcional para promotores e inversores. Su versatilidad permite múltiples enfoques: desde la restauración como residencia privada de prestigio, hasta la conversión en un conjunto de apartamentos, o incluso el desarrollo de un hotel rural con encanto. El inmueble ha sido mantenido a lo largo de los siglos, incorporando balcones en el siglo XIX y por ejemplo una renovación del tejado en 2014, lo que garantiza su solidez estructural.
La finca se asienta sobre un terreno de 4.268 m², con gran potencial de desarrollo. Existe la posibilidad de presentarse anteproyectos al ayuntamiento para su recalificación como edificable, siempre en armonía con el entorno, así como la opción de segregación, ya sea conservando únicamente el palacio o destinando la parcela a nueva construcción. En definitiva, una propiedad con infinitas posibilidades de revalorización, ideal para quienes buscan un proyecto singular con un fuerte atractivo de inversión.
Arroa Goikoa ofrece un enclave natural privilegiado, rodeado de montañas, bosques y paisajes verdes que transmiten serenidad, pero sin renunciar a la comodidad de la cercanía a la costa. Su ubicación estratégica permite disfrutar tanto del ambiente rural y auténtico del interior, como de la proximidad a localidades costeras de gran atractivo como Zumaia (a menos de 10 minutos), Zarautz y Getaria (a tan solo 15 minutos) y la cosmopolita San Sebastián/Donostia (a tan solo 25 minutos).
Un lugar donde la tradición, la historia y la naturaleza se entrelazan, creando el marco perfecto para un proyecto inmobiliario con personalidad propia. La tranquilidad del entorno, sumada a la excelente conexión con la costa y con los principales núcleos urbanos de la zona, hacen de esta propiedad una inversión única y con un potencial difícil de igualar.
Con un total de 859 m² útiles distribuidos en cuatro plantas, esta propiedad se presenta como una oportunidad excepcional para promotores e inversores. Su versatilidad permite múltiples enfoques: desde la restauración como residencia privada de prestigio, hasta la conversión en un conjunto de apartamentos, o incluso el desarrollo de un hotel rural con encanto. El inmueble ha sido mantenido a lo largo de los siglos, incorporando balcones en el siglo XIX y por ejemplo una renovación del tejado en 2014, lo que garantiza su solidez estructural.
La finca se asienta sobre un terreno de 4.268 m², con gran potencial de desarrollo. Existe la posibilidad de presentarse anteproyectos al ayuntamiento para su recalificación como edificable, siempre en armonía con el entorno, así como la opción de segregación, ya sea conservando únicamente el palacio o destinando la parcela a nueva construcción. En definitiva, una propiedad con infinitas posibilidades de revalorización, ideal para quienes buscan un proyecto singular con un fuerte atractivo de inversión.
Arroa Goikoa ofrece un enclave natural privilegiado, rodeado de montañas, bosques y paisajes verdes que transmiten serenidad, pero sin renunciar a la comodidad de la cercanía a la costa. Su ubicación estratégica permite disfrutar tanto del ambiente rural y auténtico del interior, como de la proximidad a localidades costeras de gran atractivo como Zumaia (a menos de 10 minutos), Zarautz y Getaria (a tan solo 15 minutos) y la cosmopolita San Sebastián/Donostia (a tan solo 25 minutos).
Un lugar donde la tradición, la historia y la naturaleza se entrelazan, creando el marco perfecto para un proyecto inmobiliario con personalidad propia. La tranquilidad del entorno, sumada a la excelente conexión con la costa y con los principales núcleos urbanos de la zona, hacen de esta propiedad una inversión única y con un potencial difícil de igualar.
Descripción
Características
Datos básicos
Superficie construida:
1.103 m²
Superficie solar:
4.268 m²
Habitaciones:
27
Baños:
2
Referencia:
I-030UF5-W-030UF5
Equipamiento e instalaciones
Calefacción:
Central
Garaje:
1
Exteriores
Jardín:
Privado
Características
Publicidad
Certificado energético
Clasificación: Disponible
e
Consumo:
326 kWh/m² año
e
Emisiones:
56 Kg CO₂/m² año
Ver detalle
Certificado energético
La certificación energética indica la eficiencia del inmueble en cuanto a consumo de energía, agua, etc.
La categoría A es la más eficiente y la G la menos.
Etiqueta de certificación energética
Todo lo que necesitas para tu nuevo hogar
Tu nuevo hogar, más cerca
Tu mudanza en 1 minuto
Consulta precios
Alarma por 19,90 al mes
Infórmate gratis
Última actualización
Anuncio actualizado el 16/09/2025
Contacta con el anunciante
ENGEL & VOELKERS SAN SEBASTIAN
Plaza Guipuzkoa 4 San Sebastián - Donostia (Guipúzcoa - Gipuzkoa)
843 752 291
Ref.: I-030UF5-W-030UF5
Ver inmuebles de ENGEL & VOELKERS SAN SEBASTIANCalcula tu hipoteca
Viviendas cerca de Zestoa