24 Fotos 3 Planos
  • 5 habs.
  • 5 baños
  • 400 m²
  • 3.500 €/m²

Casa adosada en venta en Calle Robayna, 43

Rambla-Duggi-Los Hoteles (Distrito Centro-Ifara. Santa Cruz de Tenerife Capital)

Más información sobre la zona

mapa
Mapa de horas solares
Simulador de luz solar

Descubre la luminosidad de los edificios según la hora del día

Descripción

Traducciones disponibles:
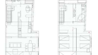
Se vende casa adosada en C/ Robayna, a 1 minuto de la Rambla con distribución: a ras de calle tenemos el acceso a la vivienda por dos entrada, plaza de garaje, despacho o habitación de ocio. Bajamos las escaleras y tenemos un salón 3 habitaciones y un baño completo; con patio interior en donde se puede poner un ascensor para subir a todas las plantas. En la 1ª planta, pasillo con hall, salón comedor con balcón exterior, cocina independiente con office, un aseo y despensa independiente y un cuarto para almacén y un balcón interior. 2ª planta tenemos 1 baño completo, 1 balcón interior, 3 habitaciones la principal doble con sala de estar y balcón al exterior y la 3ª planta es un estudio con 1 baño completo y una amplia terraza. Azotea transitada de 60m2 que se puede hacer una altura más. Por el tipo de estructura de la vivienda, no tiene paredes de cargas en el interior y por tanto se puede modificar la división interior. Ideal para inversión o pequeño hotel para alquiler vacacional.
Mostrar más
¿Tienes alguna duda? Chatea con ALQUILERES Y VENTAS CON ESTILO. Estarán encantados de ayudarte. Contacta por WhatsApp.

Características

Datos básicos

Superficie construida: 400 m²
Superficie útil: 400 m²
Superficie solar: 130 m²
Habitaciones: 5
Baños: 5
Tipo de casa: Adosada
Antigüedad: Entre 20 y 30 años
Conservación: En buen estado
Referencia: p1499

Equipamiento e instalaciones

Garaje: 1

Exteriores

Terraza
Orientación: Suroeste
Ver todas las características
Publicidad

Certificado energético

Clasificación: En trámite

Ver detalle

Todo lo que necesitas para tu nuevo hogar

Tu nuevo hogar, más cerca
Tu mudanza en 1 minuto
Consulta precios
Logo Anyvan
Alarma por 19,90 al mes
Infórmate gratis
Logo Segurma

Última actualización

Anuncio actualizado el 06/02/2026

Contacta con el anunciante

ALQUILERES Y VENTAS CON ESTILO

. Santa Cruz de Tenerife Capital (Santa Cruz de Tenerife)

822 264 294 822 264 294

Ref.: p1499

Ver inmuebles de ALQUILERES Y VENTAS CON ESTILO

Calcula tu hipoteca

Casas adosadas cerca de Rambla-Duggi-Los Hoteles (Distrito Centro-Ifara. Santa Cruz de Tenerife Capital)

Despacho Casa adosada en venta en Calle Robayna, 43, Rambla-Duggi-Los Hoteles (Distrito Centro-Ifara. Santa Cruz de Tenerife Capital) de 1.400.000 €
Casa adosada en venta en Calle Robayna, 43, Rambla-Duggi-Los Hoteles (Distrito Centro-Ifara. Santa Cruz de Tenerife Capital) de 1.400.000 €
Terraza Casa adosada en venta en Calle Robayna, 43, Rambla-Duggi-Los Hoteles (Distrito Centro-Ifara. Santa Cruz de Tenerife Capital) de 1.400.000 €
Terraza Casa adosada en venta en Calle Robayna, 43, Rambla-Duggi-Los Hoteles (Distrito Centro-Ifara. Santa Cruz de Tenerife Capital) de 1.400.000 €
Casa adosada en venta en Calle Robayna, 43, Rambla-Duggi-Los Hoteles (Distrito Centro-Ifara. Santa Cruz de Tenerife Capital) de 1.400.000 €
Casa adosada en venta en Calle Robayna, 43, Rambla-Duggi-Los Hoteles (Distrito Centro-Ifara. Santa Cruz de Tenerife Capital) de 1.400.000 €
Cocina Casa adosada en venta en Calle Robayna, 43, Rambla-Duggi-Los Hoteles (Distrito Centro-Ifara. Santa Cruz de Tenerife Capital) de 1.400.000 €
Despacho Casa adosada en venta en Calle Robayna, 43, Rambla-Duggi-Los Hoteles (Distrito Centro-Ifara. Santa Cruz de Tenerife Capital) de 1.400.000 €
Despacho Casa adosada en venta en Calle Robayna, 43, Rambla-Duggi-Los Hoteles (Distrito Centro-Ifara. Santa Cruz de Tenerife Capital) de 1.400.000 €
Despacho Casa adosada en venta en Calle Robayna, 43, Rambla-Duggi-Los Hoteles (Distrito Centro-Ifara. Santa Cruz de Tenerife Capital) de 1.400.000 €
Escalera Casa adosada en venta en Calle Robayna, 43, Rambla-Duggi-Los Hoteles (Distrito Centro-Ifara. Santa Cruz de Tenerife Capital) de 1.400.000 €
Escalera Casa adosada en venta en Calle Robayna, 43, Rambla-Duggi-Los Hoteles (Distrito Centro-Ifara. Santa Cruz de Tenerife Capital) de 1.400.000 €
Casa adosada en venta en Calle Robayna, 43, Rambla-Duggi-Los Hoteles (Distrito Centro-Ifara. Santa Cruz de Tenerife Capital) de 1.400.000 €
Casa adosada en venta en Calle Robayna, 43, Rambla-Duggi-Los Hoteles (Distrito Centro-Ifara. Santa Cruz de Tenerife Capital) de 1.400.000 €
Escalera Casa adosada en venta en Calle Robayna, 43, Rambla-Duggi-Los Hoteles (Distrito Centro-Ifara. Santa Cruz de Tenerife Capital) de 1.400.000 €
Escalera Casa adosada en venta en Calle Robayna, 43, Rambla-Duggi-Los Hoteles (Distrito Centro-Ifara. Santa Cruz de Tenerife Capital) de 1.400.000 €
Terraza Casa adosada en venta en Calle Robayna, 43, Rambla-Duggi-Los Hoteles (Distrito Centro-Ifara. Santa Cruz de Tenerife Capital) de 1.400.000 €
Casa adosada en venta en Calle Robayna, 43, Rambla-Duggi-Los Hoteles (Distrito Centro-Ifara. Santa Cruz de Tenerife Capital) de 1.400.000 €
Casa adosada en venta en Calle Robayna, 43, Rambla-Duggi-Los Hoteles (Distrito Centro-Ifara. Santa Cruz de Tenerife Capital) de 1.400.000 €
Salón Casa adosada en venta en Calle Robayna, 43, Rambla-Duggi-Los Hoteles (Distrito Centro-Ifara. Santa Cruz de Tenerife Capital) de 1.400.000 €
Patio Casa adosada en venta en Calle Robayna, 43, Rambla-Duggi-Los Hoteles (Distrito Centro-Ifara. Santa Cruz de Tenerife Capital) de 1.400.000 €
Despacho Casa adosada en venta en Calle Robayna, 43, Rambla-Duggi-Los Hoteles (Distrito Centro-Ifara. Santa Cruz de Tenerife Capital) de 1.400.000 €
Terraza Casa adosada en venta en Calle Robayna, 43, Rambla-Duggi-Los Hoteles (Distrito Centro-Ifara. Santa Cruz de Tenerife Capital) de 1.400.000 €
Casa adosada en venta en Calle Robayna, 43, Rambla-Duggi-Los Hoteles (Distrito Centro-Ifara. Santa Cruz de Tenerife Capital) de 1.400.000 €
Plano Casa adosada en venta en Calle Robayna, 43, Rambla-Duggi-Los Hoteles (Distrito Centro-Ifara. Santa Cruz de Tenerife Capital) de 1.400.000 €
Plano Casa adosada en venta en Calle Robayna, 43, Rambla-Duggi-Los Hoteles (Distrito Centro-Ifara. Santa Cruz de Tenerife Capital) de 1.400.000 €
Plano Casa adosada en venta en Calle Robayna, 43, Rambla-Duggi-Los Hoteles (Distrito Centro-Ifara. Santa Cruz de Tenerife Capital) de 1.400.000 €

¿Te interesa?

Llamar
Contactar