1.400.000 €
- 648 m²
- 2.160 €/m²
Edificio en venta en Ensanche
Casco Antiguo - Alde Zaharra (Pamplona - Iruña)
Más información sobre la zona
La ubicación es aproximada
Ubicación
Accede a la vista 3D, activa el modo satélite y consulta puntos de interés como transporte, salud, educación u otros servicios.
Descripción
Traducciones disponibles:
Edificio en venta en Pamplona: calle Chapitela nº 12, en pleno corazón del Casco Viejo
Situado en una calle peatonal muy transitada, entre la Plaza del Ayuntamiento y la Plaza del Castillo, a escasos metros de la famosa calle Estafeta —referente internacional por los encierros de San Fermín y su ambiente gastronómico—, este inmueble se encuentra en el punto más dinámico, comercial y emblemático de la ciudad.
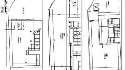
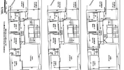
Construido en el siglo XVIII, el edificio conserva el encanto original de su arquitectura barroca. Su fachada, organizada en seis alturas (baja + 5) y un sótano, presenta elementos tan representativos como el balcón corrido de la planta principal y balcones individuales en plantas superiores.
En la actualidad, la finca se distribuye en:
• Sótano.
• Planta baja con local comercial.
• Planta primera destinada a oficina.
• Cuatro viviendas, una por planta, desde la segunda hasta la quinta.
El edificio dispone de ascensor desde la planta primera hasta la quinta, algo poco habitual en construcciones de esta época.
La propiedad fue rehabilitada en 2001, si bien requiere trabajos de actualización en el sótano, la planta primera (oficina) y la planta tercera.
Situado en una calle peatonal muy transitada, entre la Plaza del Ayuntamiento y la Plaza del Castillo, a escasos metros de la famosa calle Estafeta —referente internacional por los encierros de San Fermín y su ambiente gastronómico—, este inmueble se encuentra en el punto más dinámico, comercial y emblemático de la ciudad.
Construido en el siglo XVIII, el edificio conserva el encanto original de su arquitectura barroca. Su fachada, organizada en seis alturas (baja + 5) y un sótano, presenta elementos tan representativos como el balcón corrido de la planta principal y balcones individuales en plantas superiores.
En la actualidad, la finca se distribuye en:
• Sótano.
• Planta baja con local comercial.
• Planta primera destinada a oficina.
• Cuatro viviendas, una por planta, desde la segunda hasta la quinta.
El edificio dispone de ascensor desde la planta primera hasta la quinta, algo poco habitual en construcciones de esta época.
La propiedad fue rehabilitada en 2001, si bien requiere trabajos de actualización en el sótano, la planta primera (oficina) y la planta tercera.
Descripción
Características
Datos básicos
Superficie construida:
648 m²
Antigüedad:
Más de 50 años
Referencia:
AR03369/7288
Equipamiento e instalaciones
Ascensor
Características
Publicidad
Certificado energético
Clasificación: En trámite
Ver detalleCertificado energético
La certificación energética indica la eficiencia del inmueble en cuanto a consumo de energía, agua, etc.
La categoría A es la más eficiente y la G la menos.
Etiqueta de certificación energética
Este anuncio no dispone de etiqueta de certificación energética ya que el anunciante comunica que está "en trámite".
Todo lo que necesitas para tu nuevo hogar
Tu nuevo hogar, más cerca
Tu mudanza en 1 minuto
Consulta precios
Alarma por 19,90 al mes
Infórmate gratis
Última actualización
Anuncio actualizado el 26/11/2025
Contacta con el anunciante
Calcula tu hipoteca
