945.000 €
- 139.476 m²
- 6 €/m²
Finca rústica en venta en Polígono 16, Número 63
Porto Cristo (Manacor)
Más información sobre la zona
Ubicación
Accede a la vista 3D, activa el modo satélite y consulta puntos de interés como transporte, salud, educación u otros servicios.
Descripción
Traducciones disponibles:
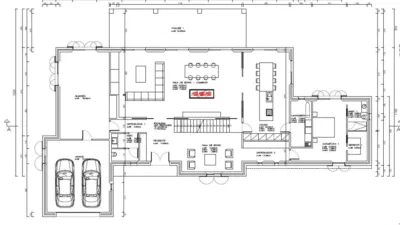
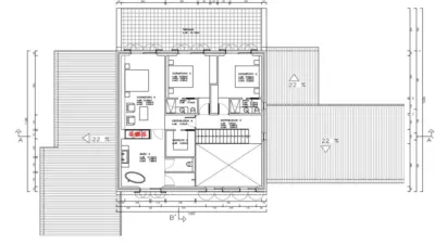
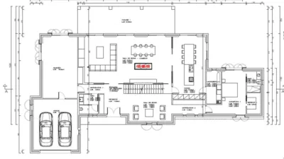
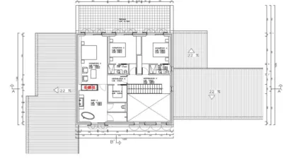
En las afueras de Porto cristo con vistas lejanas al mar tenemos esta parcela de unos 139.000 m2 con un proyecto de construcción y licencia en tramite ( ha vuelto del consell ) para una casa de una superficie construida de 506 m2 . la casa ofrecerá 4 dormitorios en suite . En planta baja tendremos una estancia de 70 M2 con comedor y sal de estar , una cocina de unos casi 35 m2 , una habitación en suite con baño y vestidor y otro salón tele , la vivienda se completara con una lavandería y un garaje para dos coches , en la primera planta tendremos 3 dormitorios uno de estos constituyendo una suite de mas de 40 m2 . la finca esta en una zona apartada del pueblo pero queda muy bien comunicada tan con porto cristo que con Manacor . Es su oportunidad de poder realizar allí una grande casa familiar . En la parcxela se puede tambien construir establos con un proyecto separado para poder criar animales .
No dude en preguntarnos mas información .
No dude en preguntarnos mas información .
Descripción
¿Tienes alguna duda? Chatea con Pascual Associats. Estarán encantados de ayudarte. Contacta por WhatsApp.
Características
Datos básicos
Superficie construida:
848 m²
Superficie solar:
139.476 m²
Conservación:
En buen estado
Referencia:
C 1180
Características
Publicidad
Certificado energético
Clasificación: Exento
Ver detalleCertificado energético
La certificación energética indica la eficiencia del inmueble en cuanto a consumo de energía, agua, etc.
La categoría A es la más eficiente y la G la menos.
Etiqueta de certificación energética
Este anuncio no dispone de etiqueta de certificación energética ya que el anunciante comunica que está "exento".
Todo lo que necesitas para tu nuevo hogar
Tu nuevo hogar, más cerca
25 € de descuento en tu mudanza
Consulta precios
Alarma por 19,90 al mes
Infórmate gratis
Última actualización
Anuncio actualizado el 27/02/2026
Contacta con el anunciante
Calcula tu hipoteca
Fincas rústicas cerca de Porto Cristo (Manacor)
Entorno
Vistas
Entorno
Entorno
Fachada
Vistas
Detalles
Vistas
Detalles
Entorno
Plano
Plano
Plano
Plano
