975.000 €
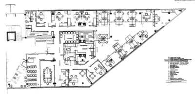
- 523 m²
- 1ª planta
- 1.864 €/m²
Oficina en venta en Calle de Zuatzu, 1
Añorga-Zubieta (San Sebastián - Donostia)
Más información sobre la zona
Ubicación
Accede a la vista 3D, activa el modo satélite y consulta puntos de interés como transporte, salud, educación u otros servicios.
Descripción
Traducciones disponibles:
Se vende oficina en el parque empresarial de Zuatzu, con fácil acceso a transporte público y servicios cercanos.
Amplio espacio distribuido en una única planta.
Muy luminoso y con acabados de alta calidad que crean un ambiente profesional y acogedor.
Incluye sistemas de climatización y tecnología de última generación.
Cuenta con sala de reuniones y amplios despachos, así como baños de señoras y caballeros.
Edificio con sistemas de seguridad y acceso controlado por conserje.
Si estás interesado en adquirir esta oficina de altas calidades, no dudes en contactarnos para más información y concertar una visita!
Amplio espacio distribuido en una única planta.
Muy luminoso y con acabados de alta calidad que crean un ambiente profesional y acogedor.
Incluye sistemas de climatización y tecnología de última generación.
Cuenta con sala de reuniones y amplios despachos, así como baños de señoras y caballeros.
Edificio con sistemas de seguridad y acceso controlado por conserje.
Si estás interesado en adquirir esta oficina de altas calidades, no dudes en contactarnos para más información y concertar una visita!
Descripción
¿Tienes alguna duda? Chatea con IGLESIAS INMOBILIARIA. Estarán encantados de ayudarte. Contacta por WhatsApp.
Características
Datos básicos
Superficie construida:
523 m²
Baños:
2
Planta:
1ª
Exterior
Conservación:
En buen estado
Referencia:
13273017
Muebles y acabados
Aislantes
Equipamiento e instalaciones
Ascensor
Teléfono
Aire acondicionado:
Frío y calor
Garaje:
Más de 2
Sistema de seguridad
Sistemas antiincendios
Características
Publicidad
Certificado energético
Clasificación: Disponible
e
Consumo:
216 kWh/m² año
d
Emisiones:
36 Kg CO₂/m² año
Ver detalle
Certificado energético
La certificación energética indica la eficiencia del inmueble en cuanto a consumo de energía, agua, etc.
La categoría A es la más eficiente y la G la menos.
Etiqueta de certificación energética
Todo lo que necesitas para tu nuevo hogar
Tu nuevo hogar, más cerca
25 € de descuento en tu mudanza
Consulta precios
Alarma por 19,90 al mes
Infórmate gratis
Última actualización
Anuncio actualizado el 27/02/2026
Contacta con el anunciante
Ref.: 13273017
Ver inmuebles de IGLESIAS INMOBILIARIACalcula tu hipoteca
Oficinas cerca de Añorga-Zubieta (San Sebastián - Donostia)
Fachada
Escalera
Escalera
Despacho
Despacho
Despacho
Despacho
Despacho
Despacho
Despacho
Despacho
Pasillo
Baño
Baño
Baño
Despacho
Despacho
Despacho
Despacho
Despacho
Despacho
Despacho
Despacho
Despacho
Pasillo
Plano
