343.000 €
- 3 habs.
- 2 baños
- 150 m²
- 1ª planta
- 2.286 €/m²
Piso en venta en Paseo de Alfonso XIII, 47
Ensanche (Distrito Núcleo Urbano. Cartagena)
Más información sobre la zona
Ubicación
Accede a la vista 3D, activa el modo satélite y consulta puntos de interés como transporte, salud, educación u otros servicios.
Descripción
Traducciones disponibles:
✨ Una terraza de ensueño en pleno corazón de Cartagena.
y todo lo que siempre soñaste en un solo hogar.
Ubicada en uno de los edificios más exclusivos y recientes de Paseo Alfonso XIII, el prestigioso Edificio Regencia, esta vivienda es un regalo para quienes desean vivir en el centro, pero sin renunciar al silencio, la luz y la intimidad.
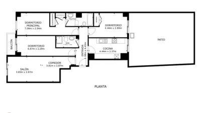
📐 105 m2 de vivienda perfectamente distribuidos:
🛏️ 3 dormitorios,
🛁 2 baños completos, uno de ellos en suite en la habitación principal,
🌿 y lo más espectacular: una terraza privada de 45 m2 con vistas al Parque de la Plaza Poeta Pelayo.
Imagina despertar cada mañana, abrir las puertas del salón y salir a tu oasis urbano, donde no se oye el tráfico, donde los árboles acarician la vista, y donde puedes disfrutar de cenas al aire libre, siestas al sol o un desayuno tranquilo en pijama bajo tu pérgola privada.
Esta terraza no es un añadido, es una joya única en el centro de Cartagena. Una extensión de tu vida, de tu casa, de tu libertad.
🌞 Con una orientación privilegiada, el salón y dos de los dormitorios miran a mediodía, garantizando luz natural durante todo el día, mientras que la cocina y el tercer dormitorio dan a la terraza norte, lo que aporta frescura y tranquilidad.
🧰 Calidades que marcan la diferencia:
* Aire acondicionado por conductos.
* Vivienda domotizada para tener el control a tu alcance.
* Tarima de gran calidad bajo tus pies.
* Carpintería interior en elegante roble.
* Ventanas de aluminio anodizado con climalit, para mayor confort acústico y térmico.
Además, incluye plaza de garaje y trastero, completando así una propuesta donde el confort y la funcionalidad se dan la mano.
Y lo mejor de todo: ya está lista para darle tu toque personal y hacer las maletas. Aquí no se trata de imaginar cómo podría ser tu vida.
aquí puedes empezarla hoy mismo.
📍 ¿Buscas centro? ¿Quieres calidad? ¿Sueñas con una terraza así?
Entonces no lo pienses mucho.
Porque viviendas como esta no salen todos los días. Y cuando salen.
se van volando.
📞 Llámanos ya. El Edificio Regencia puede ser tu nuevo hogar. Pero si parpadeas… puede que llegues tarde.
* Le informamos de que, por deseo expreso de la propiedad, comercializamos este inmueble en multiexclusiva, lo que le garantiza el acceso a toda la información, a un servicio de calidad, un trato fácil, sencillo y sin interferencias de terceros. Por este motivo, se ruega no causar molestias al propietario, a los ocupantes de la propiedad o a los vecinos.
Si usted es agente inmobiliario y tiene un cliente para este inmueble, llámenos: estaremos encantados de colaborar.
En el precio de 45.000€ no se incluye gastos, impuestos ni honorarios de la agencia inmobiliaria, derivados de la compra.
Impuesto de trasmisiones patrimoniales (ITP), en Murcia es el 7.75% del precio de venta, pero si cumples unos requisitos puedes acogerte a la reducción y pagar el 3% del precio final de venta.
Notaria, Registro y gestoría aproximadamente 2.000€.
Tasación de la vivienda: 400€ aproximadamente.
Honorarios Servicios Inmobiliarios Vela House para la parte compradora: 3% del precio final de venta más el 21% de IVA, con un mínimo de 3.000€+IVA..
y todo lo que siempre soñaste en un solo hogar.
Ubicada en uno de los edificios más exclusivos y recientes de Paseo Alfonso XIII, el prestigioso Edificio Regencia, esta vivienda es un regalo para quienes desean vivir en el centro, pero sin renunciar al silencio, la luz y la intimidad.
📐 105 m2 de vivienda perfectamente distribuidos:
🛏️ 3 dormitorios,
🛁 2 baños completos, uno de ellos en suite en la habitación principal,
🌿 y lo más espectacular: una terraza privada de 45 m2 con vistas al Parque de la Plaza Poeta Pelayo.
Imagina despertar cada mañana, abrir las puertas del salón y salir a tu oasis urbano, donde no se oye el tráfico, donde los árboles acarician la vista, y donde puedes disfrutar de cenas al aire libre, siestas al sol o un desayuno tranquilo en pijama bajo tu pérgola privada.
Esta terraza no es un añadido, es una joya única en el centro de Cartagena. Una extensión de tu vida, de tu casa, de tu libertad.
🌞 Con una orientación privilegiada, el salón y dos de los dormitorios miran a mediodía, garantizando luz natural durante todo el día, mientras que la cocina y el tercer dormitorio dan a la terraza norte, lo que aporta frescura y tranquilidad.
🧰 Calidades que marcan la diferencia:
* Aire acondicionado por conductos.
* Vivienda domotizada para tener el control a tu alcance.
* Tarima de gran calidad bajo tus pies.
* Carpintería interior en elegante roble.
* Ventanas de aluminio anodizado con climalit, para mayor confort acústico y térmico.
Además, incluye plaza de garaje y trastero, completando así una propuesta donde el confort y la funcionalidad se dan la mano.
Y lo mejor de todo: ya está lista para darle tu toque personal y hacer las maletas. Aquí no se trata de imaginar cómo podría ser tu vida.
aquí puedes empezarla hoy mismo.
📍 ¿Buscas centro? ¿Quieres calidad? ¿Sueñas con una terraza así?
Entonces no lo pienses mucho.
Porque viviendas como esta no salen todos los días. Y cuando salen.
se van volando.
📞 Llámanos ya. El Edificio Regencia puede ser tu nuevo hogar. Pero si parpadeas… puede que llegues tarde.
* Le informamos de que, por deseo expreso de la propiedad, comercializamos este inmueble en multiexclusiva, lo que le garantiza el acceso a toda la información, a un servicio de calidad, un trato fácil, sencillo y sin interferencias de terceros. Por este motivo, se ruega no causar molestias al propietario, a los ocupantes de la propiedad o a los vecinos.
Si usted es agente inmobiliario y tiene un cliente para este inmueble, llámenos: estaremos encantados de colaborar.
En el precio de 45.000€ no se incluye gastos, impuestos ni honorarios de la agencia inmobiliaria, derivados de la compra.
Impuesto de trasmisiones patrimoniales (ITP), en Murcia es el 7.75% del precio de venta, pero si cumples unos requisitos puedes acogerte a la reducción y pagar el 3% del precio final de venta.
Notaria, Registro y gestoría aproximadamente 2.000€.
Tasación de la vivienda: 400€ aproximadamente.
Honorarios Servicios Inmobiliarios Vela House para la parte compradora: 3% del precio final de venta más el 21% de IVA, con un mínimo de 3.000€+IVA..
Descripción
¿Tienes alguna duda? Chatea con Vela House. Estarán encantados de ayudarte. Contacta por WhatsApp.
Características
Datos básicos
Superficie construida:
150 m²
Superficie útil:
88 m²
Habitaciones:
3
Baños:
2
Planta:
1ª
Antigüedad:
Entre 10 y 20 años
Referencia:
VH_66/11826
Muebles y acabados
Armarios empotrados:
1
Tipo suelo:
Tarima flotante
Equipamiento e instalaciones
Aire acondicionado
Calefacción
Garaje:
1
Trastero
Puerta blindada
Ascensor
Exteriores
Balcón
Terraza
Orientación:
Sur
Características
Publicidad
Certificado energético
Clasificación: No indicado
Ver detalleCertificado energético
La certificación energética indica la eficiencia del inmueble en cuanto a consumo de energía, agua, etc.
La categoría A es la más eficiente y la G la menos.
Etiqueta de certificación energética
Este anuncio no dispone de etiqueta de certificación energética ya que el anunciante comunica que está "no indicado".
Todo lo que necesitas para tu nuevo hogar
Tu nuevo hogar, más cerca
25 € de descuento en tu mudanza
Consulta precios
Fibra barata para casa
Infórmate gratis
Última actualización
Anuncio actualizado el 04/03/2026
