Siguiente
25 Fotos 1 Plano
  • 3 habs.
  • 2 baños
  • 113 m²
  • 2ª planta
  • 3.884 €/m²

Piso en venta en Carrer de Triana

Son Espanyolet (Distrito Ponent. Palma de Mallorca)

Más información sobre la zona

mapa
La ubicación es aproximada

Descripción

Traducciones disponibles:
Taylor Building presenta este precioso y amplio piso situado en la codiciada zona de Son Espanyolet, uno de los barrios con mayor encanto y proyección de Palma. Con un ambiente residencial muy tranquilo, pero a la vez cercano a los puntos más dinámicos de la ciudad, Son Espanyolet se ha convertido en una de las áreas preferidas por familias, profesionales y quienes buscan un estilo de vida cómodo y auténtico.
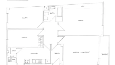
La vivienda, ubicada en una segunda planta sin ascensor, ofrece 113 m² cuidadosamente distribuidos para aprovechar al máximo la luz natural y la amplitud de cada estancia. El edificio es especialmente tranquilo, compuesto por solo dos pisos por planta y un total de seis vecinos, lo que garantiza privacidad y un ambiente silencioso.
Al acceder al piso, nos recibe un amplio y luminoso salón-comedor con salida directa a una terraza, un espacio ideal para disfrutar al aire libre. Desde la terraza se aprecian vistas despejadas a la calle, lo que aporta aún más luminosidad y una agradable sensación de amplitud al hogar.
La cocina, independiente y totalmente equipada, ofrece practicidad y un cómodo espacio de almacenamiento, diseñada para hacer del día a día una experiencia funcional y agradable.
La vivienda dispone de tres habitaciones, todas de muy buen tamaño y equipadas con armarios empotrados, ofreciendo un excelente aprovechamiento del espacio. La habitación principal destaca por su amplitud, mientras que las otras dos son perfectas como dormitorios adicionales, despacho o zona de estudio. Además, cuenta con dos baños completos, pensados para aportar confort y funcionalidad.
Como valor añadido, la propiedad incluye un trastero, ideal para almacenaje adicional, bicicletas, maletas o artículos de temporada.
La ubicación es, sin duda, uno de los grandes puntos fuertes de esta vivienda. Son Espanyolet es un barrio que combina tradición y modernidad, con calles tranquilas y un ambiente relajado, pero a pocos minutos del Palma Sport & Tennis Club, el mercado y la zona gastronómica de Santa Catalina, el centro de Palma, el Paseo Marítimo y diversas zonas verdes. La zona ofrece todo tipo de servicios: supermercados, colegios, transporte público, centros médicos, restaurantes y cafeterías.
Su combinación de amplitud, luminosidad, tranquilidad y excelente ubicación convierte este piso en una oportunidad excepcional dentro de uno de los barrios más demandados de la ciudad.
Para más información o para concertar una visita, no dudes en ponerte en contacto con nosotros. Estaremos encantados de ayudarte!
Mostrar más
¿Tienes alguna duda? Chatea con TAYLOR BUILDING. Estarán encantados de ayudarte. Contacta por WhatsApp.

Características

Datos básicos

Superficie construida: 113 m²
Superficie útil: 100 m²
Habitaciones: 3
Baños: 2
Planta:
Exterior
Conservación: En buen estado
Gastos de comunidad: Entre 60 y 80 €
Referencia: 1376

Equipamiento e instalaciones

Agua
Aire acondicionado: Frío y calor
Calefacción: Eléctrica
Cocina equipada
Trastero
Puerta blindada

Exteriores

Terraza
Orientación: Sur
Ver todas las características
Publicidad

Certificado energético

Clasificación: Pendiente de completar

Ver detalle

Todo lo que necesitas para tu nuevo hogar

Tu nuevo hogar, más cerca
25 € de descuento en tu mudanza
Consulta precios
Logo Anyvan

Última actualización

Anuncio actualizado el 13/04/2026

Contacta con el anunciante

TAYLOR BUILDING

Avenida Gabriel Roca, 16 - 1º (edif. Tropic) Palma de Mallorca (Islas Baleares - Illes Balears)

871 214 595 871 214 595

Ref.: 1376

Ver inmuebles de TAYLOR BUILDING

Calcula tu hipoteca

Viviendas cerca de Son Espanyolet (Distrito Ponent. Palma de Mallorca)

Luminoso
Cocina Piso en venta en Carrer de Triana, Son Espanyolet (Distrito Ponent. Palma de Mallorca) de 439.000 €
Cocina Piso en venta en Carrer de Triana, Son Espanyolet (Distrito Ponent. Palma de Mallorca) de 439.000 €
Terraza Piso en venta en Carrer de Triana, Son Espanyolet (Distrito Ponent. Palma de Mallorca) de 439.000 €
Terraza Piso en venta en Carrer de Triana, Son Espanyolet (Distrito Ponent. Palma de Mallorca) de 439.000 €
Piso en venta en Carrer de Triana, Son Espanyolet (Distrito Ponent. Palma de Mallorca) de 439.000 €
Piso en venta en Carrer de Triana, Son Espanyolet (Distrito Ponent. Palma de Mallorca) de 439.000 €
Piso en venta en Carrer de Triana, Son Espanyolet (Distrito Ponent. Palma de Mallorca) de 439.000 €
Piso en venta en Carrer de Triana, Son Espanyolet (Distrito Ponent. Palma de Mallorca) de 439.000 €
Piso en venta en Carrer de Triana, Son Espanyolet (Distrito Ponent. Palma de Mallorca) de 439.000 €
Piso en venta en Carrer de Triana, Son Espanyolet (Distrito Ponent. Palma de Mallorca) de 439.000 €
Piso en venta en Carrer de Triana, Son Espanyolet (Distrito Ponent. Palma de Mallorca) de 439.000 €
Piso en venta en Carrer de Triana, Son Espanyolet (Distrito Ponent. Palma de Mallorca) de 439.000 €
Piso en venta en Carrer de Triana, Son Espanyolet (Distrito Ponent. Palma de Mallorca) de 439.000 €
Piso en venta en Carrer de Triana, Son Espanyolet (Distrito Ponent. Palma de Mallorca) de 439.000 €
Piso en venta en Carrer de Triana, Son Espanyolet (Distrito Ponent. Palma de Mallorca) de 439.000 €
Piso en venta en Carrer de Triana, Son Espanyolet (Distrito Ponent. Palma de Mallorca) de 439.000 €
Piso en venta en Carrer de Triana, Son Espanyolet (Distrito Ponent. Palma de Mallorca) de 439.000 €
Baño Piso en venta en Carrer de Triana, Son Espanyolet (Distrito Ponent. Palma de Mallorca) de 439.000 €
Piso en venta en Carrer de Triana, Son Espanyolet (Distrito Ponent. Palma de Mallorca) de 439.000 €
Piso en venta en Carrer de Triana, Son Espanyolet (Distrito Ponent. Palma de Mallorca) de 439.000 €
Piso en venta en Carrer de Triana, Son Espanyolet (Distrito Ponent. Palma de Mallorca) de 439.000 €
Piso en venta en Carrer de Triana, Son Espanyolet (Distrito Ponent. Palma de Mallorca) de 439.000 €
Piso en venta en Carrer de Triana, Son Espanyolet (Distrito Ponent. Palma de Mallorca) de 439.000 €
Piso en venta en Carrer de Triana, Son Espanyolet (Distrito Ponent. Palma de Mallorca) de 439.000 €
Piso en venta en Carrer de Triana, Son Espanyolet (Distrito Ponent. Palma de Mallorca) de 439.000 €
Plano Piso en venta en Carrer de Triana, Son Espanyolet (Distrito Ponent. Palma de Mallorca) de 439.000 €

¿Te interesa?

Llamar
Contactar