Anterior Siguiente
Areizaga Inmobiliaria
45 Fotos 1 Plano 1 Tour
  • 4 habs.
  • 2 baños
  • 184 m²
  • 4ª planta
  • 4.864 €/m²

Piso en venta en Avenida de Ategorrieta

Gros (San Sebastián - Donostia)

Más información sobre la zona

mapa
La ubicación es aproximada

Descripción

Traducciones disponibles:
Gros, Avd. Ategorrieta. Vivienda en planta cuarta, orientada al Sur, con vista despejada, en edificio de gran calidad constructiva. No segregable. 
Esta vivienda destaca por su luz, gracias a estar ubicada en planta alta y orientada al Sur. Además cuenta con una agradable y amplia terraza con capacidad para una mesa de 6 personas.
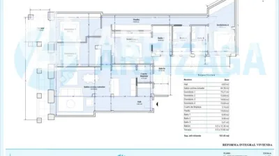
Situada junto a la plaza Vasconia , a 5 minutos de la playa de la Zurriola, la vivienda cuenta con: 160,9 m2 útiles /184 m2 construidos. 
Incluido en el precio, amplio trastero de 12 m2, ubicado en el sótano, con entrada por el patio, ventana alta y luz natural.
Estado:
A reformar. Incorporamos al anuncio plano del estado actual y propuesta de distribución con 4 habitaciones. Las imágenes mostradas corresponden a recreaciones en 3D de cómo podría quedar la vivienda tras una obra integral.
Contamos con un proyecto de reforma completo preparado por nuestro equipo de arquitectura.
La calefacción y el agua caliente por caldera mixta de gas, individual.
Posibilidad de cerrar el balcón del patio interior.
Distribución:
*Exterior a avd. Ategorrieta, al Sur y con vista despejada, tenemos 4 estancias con amplios ventanales donde actualmente se ubican dos dormitorios y el salón.
*A patio de casa muy amplio y con balcón: tenemos dos dormitorios, dos baños y cocina.
Vivienda con entrada de servicio desde la cocina.
Todos los espacios son amplios y desahogados. 
Edificio:
De estructura mixta y construcción de 1921. Se encuentra en buen estado de conservación general. Sin obras pendientes a la vista.
Gastos de comunidad de 90-€ mes. 
Zona con mucha oferta de garajes en el parking del Txofre y alrededores. 
Mostrar más

Características

Datos básicos

Superficie construida: 184 m²
Superficie útil: 160 m²
Habitaciones: 4
Baños: 2
Planta:
Exterior: Exterior
Conservación: A reformar
Gastos de comunidad: Entre 80 y 100 €
Referencia: 37236

Muebles y acabados

Armarios empotrados: 1

Equipamiento e instalaciones

Agua: Individual_gas
Calefacción
Trastero
Ascensor

Exteriores

Terraza
Orientación: Sur
Ver todas las características
Publicidad

Certificado energético

Clasificación: Disponible

e Consumo: 142 kWh/m² año
e Emisiones: 30 Kg CO₂/m² año
Ver detalle

Todo lo que necesitas para tu nuevo hogar

Tu nuevo hogar, más cerca
25 € de descuento en tu mudanza
Consulta precios
Logo Anyvan

Última actualización

Anuncio actualizado el 15/04/2026

Contacta con el anunciante

Recomendada

Areizaga Inmobiliaria

Hondarribia 11 San Sebastián - Donostia (Guipúzcoa - Gipuzkoa)

843 752 245 843 752 245

Ref.: 37236

Ver inmuebles de Areizaga Inmobiliaria

Calcula tu hipoteca

Viviendas cerca de Gros (San Sebastián - Donostia)

Ver más pisos y apartamentos en Gros
45 Fotos 1 Plano 1 Tour
Oportunidad
Piso en venta en Avenida de Ategorrieta, Gros (San Sebastián - Donostia) de 895.000 €
Piso en venta en Avenida de Ategorrieta, Gros (San Sebastián - Donostia) de 895.000 €
Piso en venta en Avenida de Ategorrieta, Gros (San Sebastián - Donostia) de 895.000 €
Piso en venta en Avenida de Ategorrieta, Gros (San Sebastián - Donostia) de 895.000 €
Piso en venta en Avenida de Ategorrieta, Gros (San Sebastián - Donostia) de 895.000 €
Piso en venta en Avenida de Ategorrieta, Gros (San Sebastián - Donostia) de 895.000 €
Piso en venta en Avenida de Ategorrieta, Gros (San Sebastián - Donostia) de 895.000 €
Piso en venta en Avenida de Ategorrieta, Gros (San Sebastián - Donostia) de 895.000 €
Piso en venta en Avenida de Ategorrieta, Gros (San Sebastián - Donostia) de 895.000 €
Piso en venta en Avenida de Ategorrieta, Gros (San Sebastián - Donostia) de 895.000 €
Piso en venta en Avenida de Ategorrieta, Gros (San Sebastián - Donostia) de 895.000 €
Piso en venta en Avenida de Ategorrieta, Gros (San Sebastián - Donostia) de 895.000 €
Piso en venta en Avenida de Ategorrieta, Gros (San Sebastián - Donostia) de 895.000 €
Piso en venta en Avenida de Ategorrieta, Gros (San Sebastián - Donostia) de 895.000 €
Piso en venta en Avenida de Ategorrieta, Gros (San Sebastián - Donostia) de 895.000 €
Piso en venta en Avenida de Ategorrieta, Gros (San Sebastián - Donostia) de 895.000 €
Piso en venta en Avenida de Ategorrieta, Gros (San Sebastián - Donostia) de 895.000 €
Piso en venta en Avenida de Ategorrieta, Gros (San Sebastián - Donostia) de 895.000 €
Piso en venta en Avenida de Ategorrieta, Gros (San Sebastián - Donostia) de 895.000 €
Piso en venta en Avenida de Ategorrieta, Gros (San Sebastián - Donostia) de 895.000 €
Piso en venta en Avenida de Ategorrieta, Gros (San Sebastián - Donostia) de 895.000 €
Piso en venta en Avenida de Ategorrieta, Gros (San Sebastián - Donostia) de 895.000 €
Piso en venta en Avenida de Ategorrieta, Gros (San Sebastián - Donostia) de 895.000 €
Piso en venta en Avenida de Ategorrieta, Gros (San Sebastián - Donostia) de 895.000 €
Piso en venta en Avenida de Ategorrieta, Gros (San Sebastián - Donostia) de 895.000 €
Piso en venta en Avenida de Ategorrieta, Gros (San Sebastián - Donostia) de 895.000 €
Piso en venta en Avenida de Ategorrieta, Gros (San Sebastián - Donostia) de 895.000 €
Piso en venta en Avenida de Ategorrieta, Gros (San Sebastián - Donostia) de 895.000 €
Piso en venta en Avenida de Ategorrieta, Gros (San Sebastián - Donostia) de 895.000 €
Piso en venta en Avenida de Ategorrieta, Gros (San Sebastián - Donostia) de 895.000 €
Piso en venta en Avenida de Ategorrieta, Gros (San Sebastián - Donostia) de 895.000 €
Piso en venta en Avenida de Ategorrieta, Gros (San Sebastián - Donostia) de 895.000 €
Piso en venta en Avenida de Ategorrieta, Gros (San Sebastián - Donostia) de 895.000 €
Piso en venta en Avenida de Ategorrieta, Gros (San Sebastián - Donostia) de 895.000 €
Piso en venta en Avenida de Ategorrieta, Gros (San Sebastián - Donostia) de 895.000 €
Piso en venta en Avenida de Ategorrieta, Gros (San Sebastián - Donostia) de 895.000 €
Piso en venta en Avenida de Ategorrieta, Gros (San Sebastián - Donostia) de 895.000 €
Piso en venta en Avenida de Ategorrieta, Gros (San Sebastián - Donostia) de 895.000 €
Piso en venta en Avenida de Ategorrieta, Gros (San Sebastián - Donostia) de 895.000 €
Piso en venta en Avenida de Ategorrieta, Gros (San Sebastián - Donostia) de 895.000 €
Piso en venta en Avenida de Ategorrieta, Gros (San Sebastián - Donostia) de 895.000 €
Piso en venta en Avenida de Ategorrieta, Gros (San Sebastián - Donostia) de 895.000 €
Piso en venta en Avenida de Ategorrieta, Gros (San Sebastián - Donostia) de 895.000 €
Piso en venta en Avenida de Ategorrieta, Gros (San Sebastián - Donostia) de 895.000 €
Piso en venta en Avenida de Ategorrieta, Gros (San Sebastián - Donostia) de 895.000 €
Plano Piso en venta en Avenida de Ategorrieta, Gros (San Sebastián - Donostia) de 895.000 €
Ver tour virtual

¿Te interesa?

Llamar
Contactar