109.920 €
- 213 m²
- 516 €/m²
Terreno en venta en Calle de Simón Cananeo, 68
Tamaraceite-San Lorenzo-Casa Ayala (Las Palmas de Gran Canaria)
Más información sobre la zona
Ubicación
Accede a la vista 3D, activa el modo satélite y consulta puntos de interés como transporte, salud, educación u otros servicios.
Descripción
Traducciones disponibles:
¿Buscas SOLAR para construir dos viviendas unifamiliares o una pequeña promoción de viviendas?
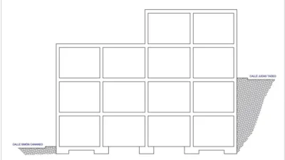
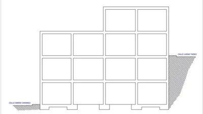
En los alrededores de TAMARACEITE (LAS PALMAS DE GRAN CANARIA), en el barrio de ISLA PERDIDA, solar con fachada hacia dos calles. Con una superficie (según catastro) de 213 m2, su perímetro tiene 10 m de fachada hacia la calle Judas Tadeo (suroeste), dos laterales de 17,75 y de 19,60 m, y 13 m de fachada hacia la calle Simón Cananeo (noreste).
Tipo de zona de edificación: Norma Zonal B2. Por ser una parcela en ladera, incluida en manzana definida por vías sensiblemente paralelas entre ellas, y con rasantes a distinto nivel, al ser la diferencia de cotas entre rasantes de dos (2) plantas, se permite edificar tres (3) plantas hacia el vial inferior (Simón Cananeo) y dos (2) plantas hacia el superior (Judas Tadeo). Dicho escalonamiento se producirá en la mitad de la parcela.
Edificabilidad: No se limita.
Porcentaje máximo de ocupación: No se limita.
Número de viviendas, en la categoría de Vivienda Unifamiliar: 2.
Número de viviendas por planta, en Edificación Colectiva: 2.
Posición de la edificación en la parcela. La edificación deberá ejecutarse con la línea de fachada sobre la alineación oficial y los muros medianeros sobre los linderos laterales, pudiendo abrirse patios a éstos últimos.
El barrio de Isla Perdida se ubica entre los barrios de Piletas (al este), la Montaña de San Gregorio (al sur) y la zona de Risco Negro (al oeste). Surgió, en sus inicios, con casas unifamiliares y, en una etapa más reciente, se ha continuado edificando, en parcelas similares a este solar, con pequeñas promociones, del orden de 5 o 6 viviendas. El barrio es final de una de las líneas (44) de Guaguas Municipales, y, por su emplazamiento, no representa una zona de tránsito habitual de vehículos, salvo para aquellas personas que residen en él, lo cual lo hace ser una zona bastante tranquila y acogedora. Además cuenta con Local Social y alguna tienda de cercanía.
Aproximadamente a 2 Km se encuentra tanto el Centro Comercial Los Alisios como Tamaraceite, aportando todo tipo de servicios, zona comercial, entidades bancarias, centro de salud, farmacias, parques, restaurantes y otras zonas de ocio. Su cercanía a la GC-3 permite también una excelentemente comunicación tanto con otras zonas de la capital como con el resto de la isla ▫️ ¡No lo dudes y solicita más información!
Se admite permuta, bajo condiciones a negociar.
Información: El precio de venta No incluye impuestos propios de la transmisión, gastos de notaría, registro, ni cualquier otro que según ley pueda corresponder al comprador. Los datos expuestos son meramente orientativos y se encuentran sujetos a errores u omisiones involuntarias.
En los alrededores de TAMARACEITE (LAS PALMAS DE GRAN CANARIA), en el barrio de ISLA PERDIDA, solar con fachada hacia dos calles. Con una superficie (según catastro) de 213 m2, su perímetro tiene 10 m de fachada hacia la calle Judas Tadeo (suroeste), dos laterales de 17,75 y de 19,60 m, y 13 m de fachada hacia la calle Simón Cananeo (noreste).
Tipo de zona de edificación: Norma Zonal B2. Por ser una parcela en ladera, incluida en manzana definida por vías sensiblemente paralelas entre ellas, y con rasantes a distinto nivel, al ser la diferencia de cotas entre rasantes de dos (2) plantas, se permite edificar tres (3) plantas hacia el vial inferior (Simón Cananeo) y dos (2) plantas hacia el superior (Judas Tadeo). Dicho escalonamiento se producirá en la mitad de la parcela.
Edificabilidad: No se limita.
Porcentaje máximo de ocupación: No se limita.
Número de viviendas, en la categoría de Vivienda Unifamiliar: 2.
Número de viviendas por planta, en Edificación Colectiva: 2.
Posición de la edificación en la parcela. La edificación deberá ejecutarse con la línea de fachada sobre la alineación oficial y los muros medianeros sobre los linderos laterales, pudiendo abrirse patios a éstos últimos.
El barrio de Isla Perdida se ubica entre los barrios de Piletas (al este), la Montaña de San Gregorio (al sur) y la zona de Risco Negro (al oeste). Surgió, en sus inicios, con casas unifamiliares y, en una etapa más reciente, se ha continuado edificando, en parcelas similares a este solar, con pequeñas promociones, del orden de 5 o 6 viviendas. El barrio es final de una de las líneas (44) de Guaguas Municipales, y, por su emplazamiento, no representa una zona de tránsito habitual de vehículos, salvo para aquellas personas que residen en él, lo cual lo hace ser una zona bastante tranquila y acogedora. Además cuenta con Local Social y alguna tienda de cercanía.
Aproximadamente a 2 Km se encuentra tanto el Centro Comercial Los Alisios como Tamaraceite, aportando todo tipo de servicios, zona comercial, entidades bancarias, centro de salud, farmacias, parques, restaurantes y otras zonas de ocio. Su cercanía a la GC-3 permite también una excelentemente comunicación tanto con otras zonas de la capital como con el resto de la isla ▫️ ¡No lo dudes y solicita más información!
Se admite permuta, bajo condiciones a negociar.
Información: El precio de venta No incluye impuestos propios de la transmisión, gastos de notaría, registro, ni cualquier otro que según ley pueda corresponder al comprador. Los datos expuestos son meramente orientativos y se encuentran sujetos a errores u omisiones involuntarias.
Descripción
¿Tienes alguna duda? Chatea con DIFFERENT INMOBILIARIA. Estarán encantados de ayudarte. Contacta por WhatsApp.
Características
Datos básicos
Superficie solar:
213 m²
Referencia:
JC2-00053/12866
Exteriores
Arbolado
Características
Publicidad
Certificado energético
Clasificación: Exento
Ver detalleCertificado energético
La certificación energética indica la eficiencia del inmueble en cuanto a consumo de energía, agua, etc.
La categoría A es la más eficiente y la G la menos.
Etiqueta de certificación energética
Este anuncio no dispone de etiqueta de certificación energética ya que el anunciante comunica que está "exento".
Todo lo que necesitas para tu nuevo hogar
Tu nuevo hogar, más cerca
Última actualización
Anuncio actualizado el 23/01/2026
Contacta con el anunciante
Ref.: JC2-00053/12866
Ver inmuebles de DIFFERENT INMOBILIARIACalcula tu hipoteca
Terrenos cerca de Tamaraceite-San Lorenzo-Casa Ayala (Las Palmas de Gran Canaria)
Vistas
Vistas
Vistas
Vistas
Vistas
Vistas
Vistas
Vistas
Vistas
Vistas
Vistas
Vistas
Vistas
Vistas
Vistas
Plano
Plano
Plano
